3 Austin Grove, ZETLAND NSW 2017
Style, luxury & convenience!
PROPERTY SUMMARY
Property Description
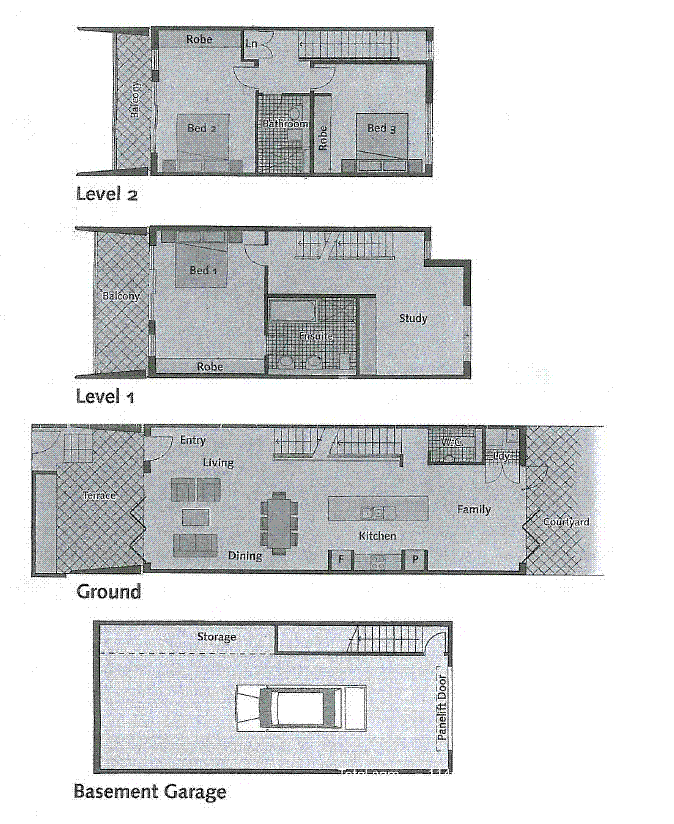
A property of style and distinction, this lavishly appointed 4 storey terrace offers an ideal environment for family living. Adorned with the finest finishes, award winning design and construction you will feel at ease with the efficient design and flow of the floor plan.
The property boasts a large and open planned kitchen with polished stone bench tops and stainless steel smeg appliances.
The lounge and family room open out onto their own courtyards via French sliding doors, three double sized bedrooms with a generous sized ensuite and balcony to the main, second bedroom also features a balcony.
Features:
-Air conditioning
-Spacious media room
-2.5 bathrooms
-internal access to huge garage – 54sqm
-Tiles throughout living room and kitchen, and timber floorboards on all bedrooms.
-The property also includes a magnificent north facing aspect over Tote Park.
– 5 mins from Coles supermarket, Danks street specialty shops and cafés.
-Buses on Joynton Ave, Green Square Train station just around the corner. Centrally located with easy reach to City & Eastern Suburbs.






